
Planning/Master Planning
Sudberry Properties
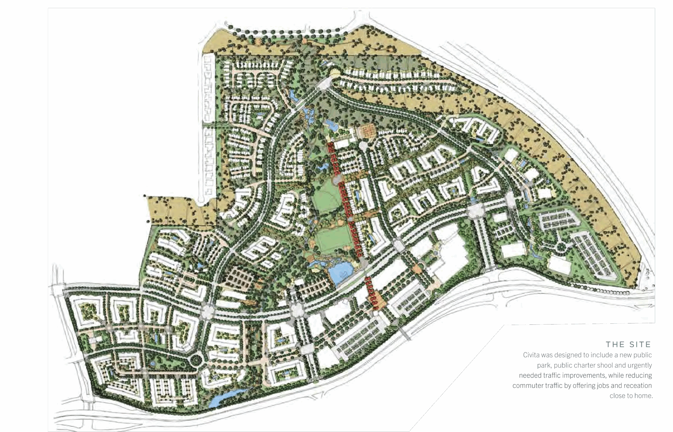
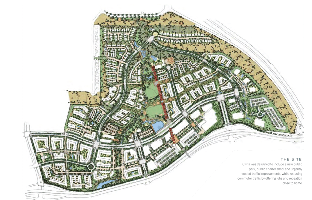
Civita
Vision
The vision for Civita (formerly known as Quarry Falls) centers on a vibrant village setting that enhances quality of life for both existing and future residents. At the heart of the plan is a distinctive terraced park that descends from the mesa to the river valley, serving as a dynamic spine for the community. Development along this park transitions from low-density residential on the mesa to medium-density and mixed-use on the valley floor, reflecting a shift from natural to urban character.








